ARCHITECTURE

LANDSCAPE

INTERIORS

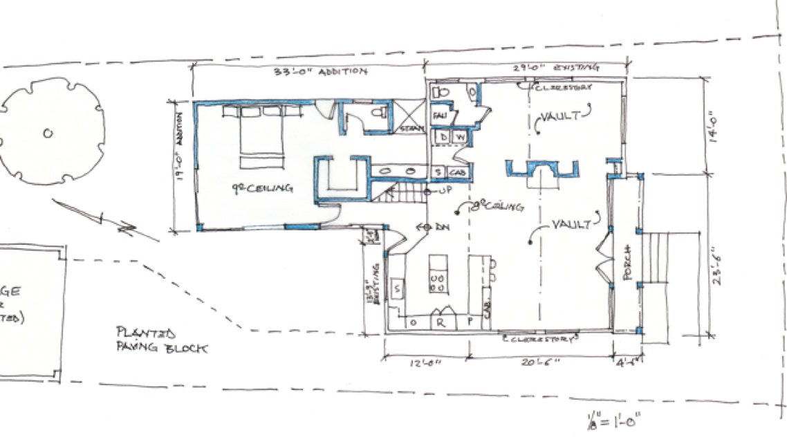
Schematic of a house remodel

SCHEMATIC DESIGN PHASE

In this phase, the Architect creates design options based on the Owner’s Program (wants, needs, budget, etc.), site constraints and potential green design strategies for the project.

After design alternatives are explored, then a well-defined, feasible concept is chosen. 

This phase typically includes rough sketches, basic modeling and a conceptual budget estimate. 

Click here for a description of the next phase: 

Ron Culver, AIA

Ron Culver, Architect

info@culverarchitects.com venice, ca 90291 copyright culver architects inc. all rights reserved